Vendita appartamento Valenza (AL)

77.000

RIF. annuncio

: 0787

m2

: 120

Locali

: 3 Locali

Appartamento 3 locali, Valenza, zona Esselunga, box auto, ascensore, 2 balconi con vista

Contattaci per visitare l’immobile.

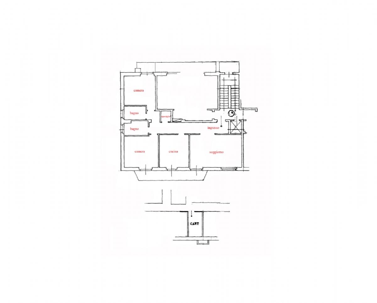
In via Mantova a Valenza, in zona tranquilla della città, proponiamo un’ampia abitazione libera su 3 arie. L’appartamento di Mq 120, è sito al 4° piano con ascensore. Ingresso con porta blindata, uno spazioso soggiorno con porta finestra poi un’ampia cucina. Proseguendo troviamo la zona notte con due camere matrimoniali, un bagno con vasca e il secondo bagno con doccia entrambi finestrati; ed infine un comodo ripostiglio.
Dotato di impianto di aria condizionata. L’immobile dispone 2 balconi con vista panoramica. Il soggiorno, la cucina e le 2 camere da letto si affacciano sui 2 balconi dotati di tende da sole.
I serramenti dell’immobile sono in PVC con zanzariere.

Completano la soluzione un box auto e la cantina.

Contattaci per visitare l’immobile.
------------------------------------------------------------------------------------------------------------------------ Le indicazioni riportate e le immagini devono considerarsi indicative e non hanno alcun vincolo contrattuale. Alcune metrature sono puramente indicative. Alcuni indirizzi di google map potrebbero non corrispondere esattamente all'ubicazione dell'immobile ma indicare la zona, questo al fine di garantire la privacy dei proprietari. L’ Agenzia Immobiliare Davi Srl con sede in Valenza Piazza Gramsci 14C, declina ogni responsabilità per eventuali ed involontarie incongruenze tra le effettive caratteristiche dell’immobile e la descrizione informativa.


 

Planimetria


Piano:

Stato manutenzione:

In stato originale

Arie:

NORD- SUD - OVEST

Tipo cucina:

ABITABILE

N° camere da letto:

2

N° bagni:

2

Tipo serramenti esterni:

PVC

Zanzariere:

Tipo riscaldamento:

Centralizzato con contacalorie

Spese riscald. (anno):

€2.000,00

Spese condominio (anno):

€1.142,00

Gestione e riscaldamento:

€3.142,00

Tipo facciata:

MATTONI A VISTA

Pavimento cucina:

CERAMICA

Pavimento soggiorno:

MARMO

Pavimento camere:

MARMO

Pavimento bagno:

CERAMICA

N° balconi:

2

Cantina:

SI

Ripostiglio:

SI

Box:

m2 Box:

14

Box incluso nel prezzo:

Aria condizionata:

Porta blindata:

Classe energetica:

G

Prestazione fabbricato:

287,91

Anno costruzione:

1970

Ascensore:







Richiedi Informazioni


Dichiaro di avere preso attenta visione dell’informativa sulla privacy e presto il consenso al trattamento dei miei dati personali al fine di cercare un immobile, ex. art. 6, par. 1 lett. A) del Regolamento (UE) 2016/679
Accetto
Vi informiamo inoltre che i Vostri dati anagrafici saranno trattati solo ed esclusivamente da Agenzia Immobiliare Davi Srl o da soggetti espressamene incaricati per l’esecuzione di alcuni dei servizi richiesti e non verranno ceduti a terzi senza un Vostro previo consenso in osservanza del Regolamento (UE) 2016/679
Spunta il campo captcha




CHIAMA
0131.955278