Vendita ufficio Valenza (AL)

78.000

RIF. annuncio

: 13250

m2

: 131

Locali

: 3 Locali

Indirizzo

: VIA CAVALLOTTI 63, 15048

Valenza, ufficio in posizione centrale 

Contattaci per visitare l'immobile.

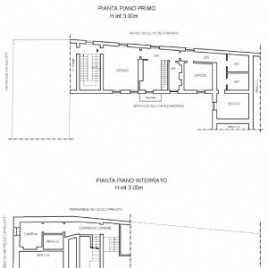
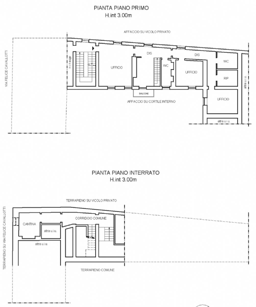
Valenza, via Cavallotti, ufficio di mq 131 sito al piano terra e primo piano in posizione centrale. L'ufficio è così composto: ingresso con bussola al piano terra, due locali e bagno finestrato; proseguendo lungo le scale si accede al primo piano, dove si trovano un comodo disimpegno con balcone, 3 locali, bagno finestrato con doccia e ripostiglio. Qui i pavimenti sono in parquet. È presente l'aria condizionata su entrambi i piani; gli infissi sono in alluminio con doppio vetro e inferriate al piano terra. Compresa cantina.
L'ufficio affaccia sul cortile interno ed è in posizione centrale.

Contattaci per visitare l'immobile.

-----------------------------------------------------------------------------------------------------------------------
Le indicazioni riportate e le immagini devono considerarsi indicative e non hanno alcun vincolo contrattuale. Alcune metrature sono puramente indicative. Alcuni indirizzi di Google Maps potrebbero non corrispondere esattamente all'ubicazione dell'immobile ma indicare la zona, questo al fine di garantire la privacy dei proprietari. L’Agenzia Immobiliare Davi Srl con sede in Valenza Piazza Gramsci 14C, declina ogni responsabilità per eventuali ed involontarie incongruenze tra le effettive caratteristiche dell’immobile e la descrizione informativa.

 

Planimetria


Piano:

PIANO TERRA - PRIMO PIANO

Stato manutenzione:

In buono stato

Arie:

2

N° bagni:

2

Tipo serramenti esterni:

ALLUMINIO CON DOPPIO VETRO

Tipo riscaldamento:

Centralizzato

N° balconi:

1

Cantina:

SI

Ripostiglio:

SI

N° posto auto:

2

Cancello elettrico:

Aria condizionata:

Passo carraio:

Classe energetica:

G

Prestazione fabbricato:

168.81








Richiedi Informazioni


Dichiaro di avere preso attenta visione dell’informativa sulla privacy e presto il consenso al trattamento dei miei dati personali al fine di cercare un immobile, ex. art. 6, par. 1 lett. A) del Regolamento (UE) 2016/679
Accetto
Vi informiamo inoltre che i Vostri dati anagrafici saranno trattati solo ed esclusivamente da Agenzia Immobiliare Davi Srl o da soggetti espressamene incaricati per l’esecuzione di alcuni dei servizi richiesti e non verranno ceduti a terzi senza un Vostro previo consenso in osservanza del Regolamento (UE) 2016/679
Spunta il campo captcha




CHIAMA
0131.955278