Vendita casa semindipendente Bozzole (AL)

38.000

RIF. annuncio

: 13279

m2

: 167

Locali

: 4 Locali

Indirizzo

: VICOLO BINELLI 7

Bozzole, casa semindipendente con spazio esterno e box auto

Contattaci per visitare la casa.

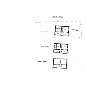
Bozzole, alle porte del Monferrato, casa semindipendente di mq 167 disposta su due livelli con spazio esterno frontale.
La soluzione è così composta: ingresso al piano terra su zona giorno con soggiorno, sala da pranzo con cucina a vista e un comodo ripostiglio; al primo piano si trova la zona notte con tre camere da letto di cui una camera matrimoniale e due singole, bagno finestrato con vasca, due ripostigli ed un balcone.
Sul retro si trova un secondo spazio esterno con fabbricato a due piani che comprende il box auto di mq 24 e il fienile.
Ideale come alternativa all'appartamento in città.
Posizione comoda alle città di Valenza, a 10 minuti di auto, e Casale Monferrato, a 15.

Contattaci per visitare la casa.

-----------------------------------------------------------------------------------------------------------------------
Le indicazioni riportate e le immagini devono considerarsi indicative e non hanno alcun vincolo contrattuale. Alcune metrature sono puramente indicative. Alcuni indirizzi di Google Maps potrebbero non corrispondere esattamente all'ubicazione dell'immobile ma indicare la zona, questo al fine di garantire la privacy dei proprietari. L’Agenzia Immobiliare Davi Srl con sede in Valenza Piazza Gramsci 14C, declina ogni responsabilità per eventuali ed involontarie incongruenze tra le effettive caratteristiche dell’immobile e la descrizione informativa.

 

Planimetria


Piano:

PIANO TERRA - PRIMO PIANO

Stato manutenzione:

In buono stato

Arie:

3

Tipo cucina:

A VISTA

N° camere da letto:

3

N° bagni:

1

Tipo serramenti esterni:

Legno e doppio vetro

Tipo riscaldamento:

Autonomo a Gas

N° balconi:

1

Cortile:

SI

Sottotetto:

SI

Solaio:

SI

Ripostiglio:

SI

Box:

m2 Box:

24

Box incluso nel prezzo:

Passo carraio:

Classe energetica:

G

Prestazione fabbricato:

287,74








Richiedi Informazioni


Dichiaro di avere preso attenta visione dell’informativa sulla privacy e presto il consenso al trattamento dei miei dati personali al fine di cercare un immobile, ex. art. 6, par. 1 lett. A) del Regolamento (UE) 2016/679
Accetto
Vi informiamo inoltre che i Vostri dati anagrafici saranno trattati solo ed esclusivamente da Agenzia Immobiliare Davi Srl o da soggetti espressamene incaricati per l’esecuzione di alcuni dei servizi richiesti e non verranno ceduti a terzi senza un Vostro previo consenso in osservanza del Regolamento (UE) 2016/679
Spunta il campo captcha




CHIAMA
0131.955278