Valmadonna, villetta binata libera su tre lati con giardino indipendente
Contattaci per visitare l'immobile.
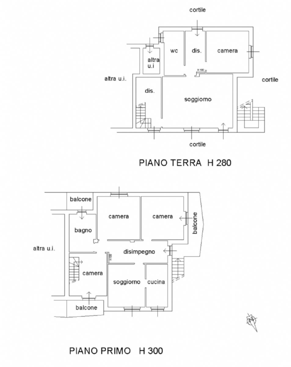
A pochi minuti dalla città di Alessandria, nella frazione di Valmadonna, proponiamo in vendita una villetta binata libera su tre lati, di mq 204.
La proprietà, disposta su due livelli con triplo ingresso, è caratterizzata da ambienti luminosi, ben distribuiti e curati nei dettagli. Caratterizzata da ampio soggiorno, cucina, salotto, quattro camere, due bagni finestrati con doccia e due balconi.
In classe energetica A1, i serramenti in PVC con doppio vetro e zanzariere, soluzione che garantisce comfort abitativo, isolamento termico e acustico. La casa è inoltre dotata di impianto d'allarme, videocitofono e porte blindate.
All’esterno il giardino rappresenta uno dei punti di forza della proprietà: uno spazio verde ideale per momenti di relax, per chi ama il giardinaggio o per famiglie con bambini e animali.
L’accesso alla proprietà è regolato da cancello elettrico che conduce al cortile e all’area dedicata ai box auto, dove troviamo un box doppio affiancato da un ulteriore box singolo, soluzione perfetta per ospitare più veicoli o creare spazio per hobby e deposito.
La posizione, riservata ma comoda ai servizi e alla città, unita agli spazi interni ben organizzati e al giardino rende questa soluzione ideale per chi desidera vivere in un contesto tranquillo senza rinunciare alla comodità e alla qualità della vita.
Una casa pronta da vivere, perfetta per chi cerca indipendenza, spazio e tranquillità alle porte di Alessandria.











































