Vendita laboratorio Valenza (AL)

39.000

RIF. annuncio

: 3448

m2

: 72

Locali

: 3 Locali

Indirizzo

: VIA RIMINI 1

Laboratorio di 72 mq con ufficio in vendita a Valenza

Contattaci per visitare l'immobile.

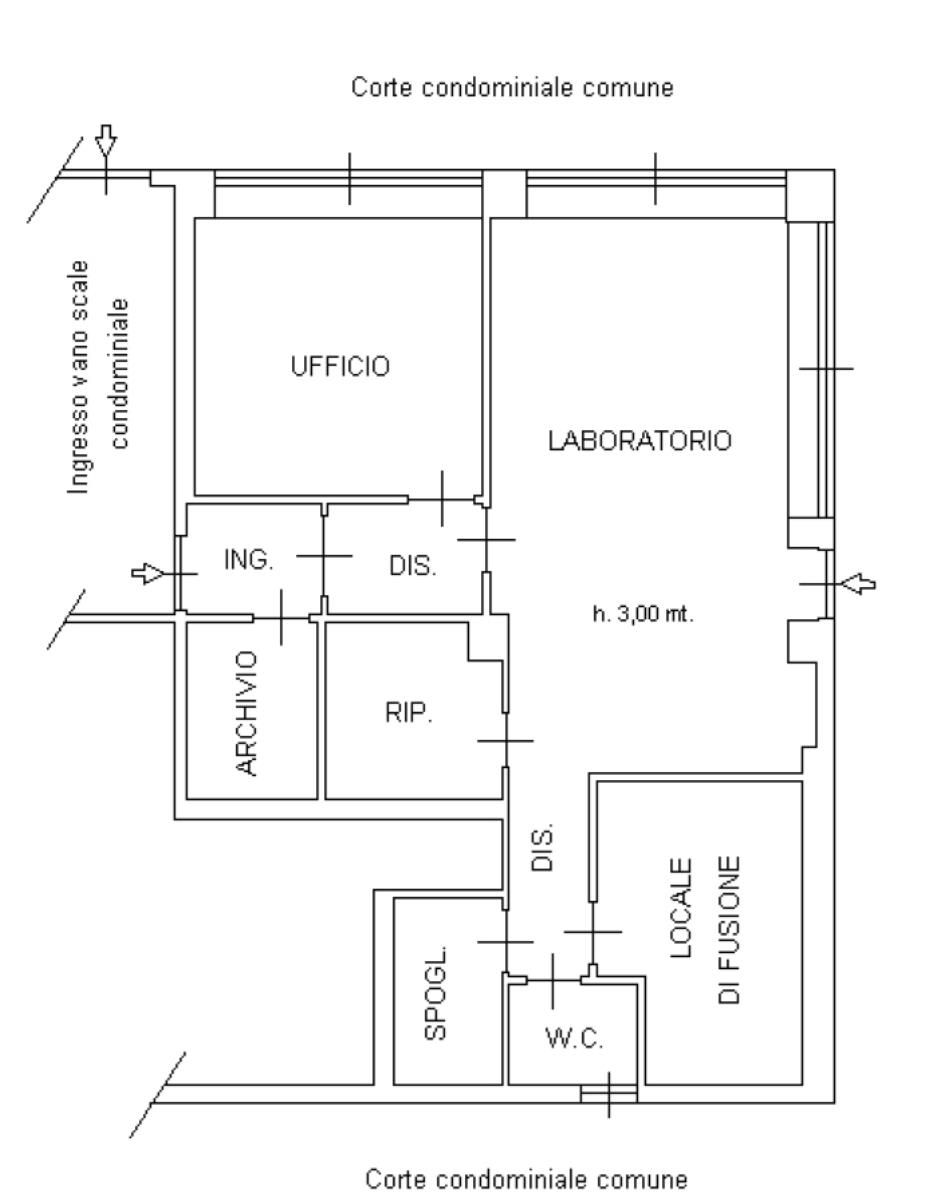
A Valenza, in Via Rimini, proponiamo in vendita laboratorio di mq 72 con locali accessori, situato al piano terreno di contesto condominiale, ideale per attività artigianali, orafo–manifatturiere o professionali.

L’immobile, da rimodernare, si sviluppa su un unico livello ed è composto da:

  • Ampio locale laboratorio principale, luminoso e ben distribuito

  • Locale fusione / area tecnica separata

  • Ufficio indipendente, adatto a ricevimento clienti o gestione amministrativa

  • Archivio e ripostiglio

  • Spogliatoio e servizio igienico

  • Accesso diretto al cortile
  • Disimpegni funzionali che collegano razionalmente tutti gli ambienti

Altezza interna: h 3,00 mt

Caratteristiche principali:

  • Accesso da scala condominiale

  • Spazi già suddivisi tra area operativa e area amministrativa

  • Impiantistica presente

  • Ambienti finestrati che garantiscono buona luminosità naturale

Il laboratorio si presenta con organizzazione interna funzionale, con area produttiva ampia e locali di servizio ben distinti, consentendo una gestione ordinata dei flussi di lavoro.

L’immobile si trova in zona tranquilla e servita di Valenza, città rinomata per la tradizione orafa, in contesto facilmente raggiungibile e comodo ai principali servizi.

Contattaci per visitare l'immobile.

-----------------------------------------------------------------------------------------------------------------------
Le indicazioni riportate e le immagini devono considerarsi indicative e non hanno alcun vincolo contrattuale. Alcune metrature sono puramente indicative. Alcuni indirizzi di Google Maps potrebbero non corrispondere esattamente all'ubicazione dell'immobile ma indicare la zona, questo al fine di garantire la privacy dei proprietari. L’Agenzia Immobiliare Davi Srl con sede in Valenza Piazza Gramsci 14C, declina ogni responsabilità per eventuali ed involontarie incongruenze tra le effettive caratteristiche dell’immobile e la descrizione informativa.

 

Planimetria


Piano:

PIANO TERRA

Stato manutenzione:

In stato originale

N° bagni:

1

Classe energetica:

G

Prestazione fabbricato:

440.78

Anno costruzione:

1970








Richiedi Informazioni


Dichiaro di avere preso attenta visione dell’informativa sulla privacy e presto il consenso al trattamento dei miei dati personali al fine di cercare un immobile, ex. art. 6, par. 1 lett. A) del Regolamento (UE) 2016/679
Accetto
Vi informiamo inoltre che i Vostri dati anagrafici saranno trattati solo ed esclusivamente da Agenzia Immobiliare Davi Srl o da soggetti espressamene incaricati per l’esecuzione di alcuni dei servizi richiesti e non verranno ceduti a terzi senza un Vostro previo consenso in osservanza del Regolamento (UE) 2016/679
Spunta il campo captcha




CHIAMA
0131.955278