Vendita ufficio Valenza (AL)

110.000

RIF. annuncio

: 12991

m2

: 227

Indirizzo

: VIA SAN GIOVANNI 8

Valenza, laboratorio termoautonomo con uffici e box auto

Contattaci per visitare l'immobile.

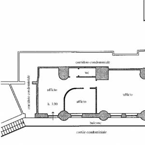
Valenza, via San Giovanni, laboratorio termoautonomo con uffici di mq 227 sito al primo piano con box auto. L'immobile è così disposto: doppio ingresso con bussola, tre uffici, doppi servizi, laboratorio, due spogliatoi e comodo ripostiglio. Balcone ad uso esclusivo con cancello.
Sono presenti impianto d'allarme e impianto per aria condizionata. I serramenti sono in alluminio con doppio vetro.
Zona comoda al parcheggio, a pochi minuti dal Centro.

Contattaci per visitare l'immobile.

-----------------------------------------------------------------------------------------------------------------------
Le indicazioni riportate e le immagini devono considerarsi indicative e non hanno alcun vincolo contrattuale. Alcune metrature sono puramente indicative. Alcuni indirizzi di Google Maps potrebbero non corrispondere esattamente all'ubicazione dell'immobile ma indicare la zona, questo al fine di garantire la privacy dei proprietari. L’Agenzia Immobiliare Davi Srl con sede in Valenza Piazza Gramsci 14C, declina ogni responsabilità per eventuali ed involontarie incongruenze tra le effettive caratteristiche dell’immobile e la descrizione informativa.

 

Planimetria


Piano:

PRIMO PIANO

Arie:

1

N° bagni:

2

Tipo serramenti esterni:

ALLUMINIO CON DOPPIO VETRO

Tipo riscaldamento:

Autonomo a Gas

Spese condominio (anno):

€854,53

N° balconi:

1

Ripostiglio:

SI

Box:

m2 Box:

10

Box incluso nel prezzo:

Aria condizionata:

Porta blindata:

Passo carraio:

Impianto di allarme:

Classe energetica:

D

Prestazione fabbricato:

97.62

Anno costruzione:

1965








Richiedi Informazioni


Dichiaro di avere preso attenta visione dell’informativa sulla privacy e presto il consenso al trattamento dei miei dati personali al fine di cercare un immobile, ex. art. 6, par. 1 lett. A) del Regolamento (UE) 2016/679
Accetto
Vi informiamo inoltre che i Vostri dati anagrafici saranno trattati solo ed esclusivamente da Agenzia Immobiliare Davi Srl o da soggetti espressamene incaricati per l’esecuzione di alcuni dei servizi richiesti e non verranno ceduti a terzi senza un Vostro previo consenso in osservanza del Regolamento (UE) 2016/679
Spunta il campo captcha




CHIAMA
0131.955278