Vendita casa indipendente Rivarone (AL)

78.000

RIF. annuncio

: 3431

m2

: 229

Locali

: 3 Locali

Indirizzo

: VIA ALESSANDRIA 51

Tra Valenza e Alessandria – Rivarone, Casa indipendente con cortile privato e box auto

Contattaci per ricevere maggiori informazioni e prenotare la tua visita.

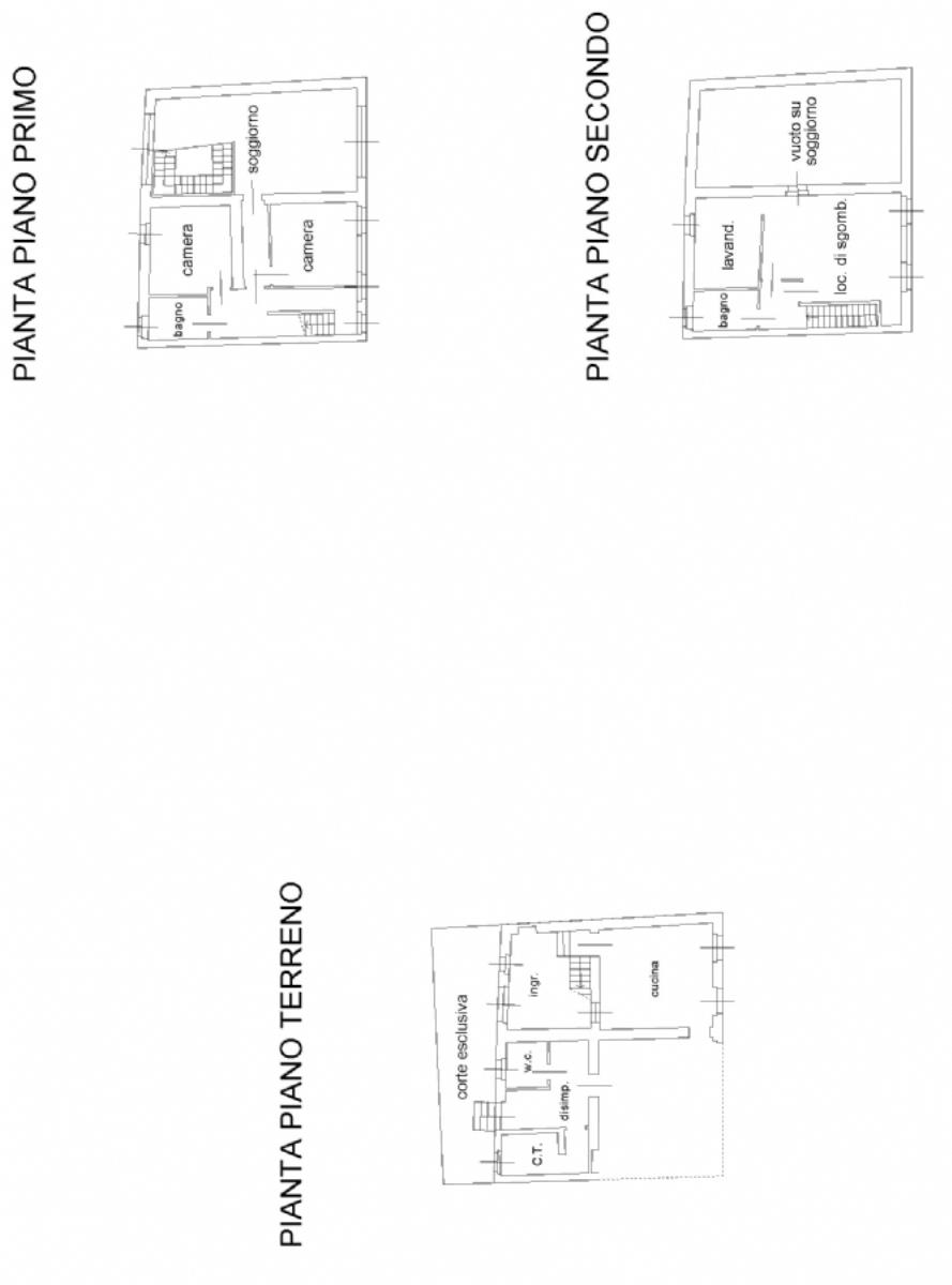
In posizione strategica tra Valenza e Alessandria, nel tranquillo contesto residenziale di Rivarone, proponiamo in vendita ampia casa indipendente di 229 mq, libera su tre lati e disposta su due livelli abitativi oltre a mansarda.

Una soluzione ideale per chi desidera indipendenza, spazi generosi e la comodità di raggiungere Valenza in meno di 10 minuti d’auto.

Spazi interni ampi e ben distribuiti

L’abitazione si sviluppa su più livelli:

Piano terra

  • Doppio ingresso

  • Cucina abitabile

  • Comodo disimpegno

  • Bagno di servizio finestrato

  • Accesso diretto al box auto

Primo piano

  • Luminoso soggiorno

  • Camera matrimoniale

  • Cameretta/studio

  • Bagno finestrato con doccia

  • Ripostiglio

Ultimo piano – Mansarda

  • Ambiente versatile con soppalco affacciato sul soggiorno

  • Bagno finestrato

  • Locale lavanderia

La presenza della mansarda con soppalco aggiunge carattere e funzionalità, offrendo uno spazio perfetto come zona relax, studio o area hobby.

Spazi esterni da vivere

All’ingresso principale troviamo un comodo portico coperto, ideale per pranzi e cene all’aperto, con spazio per un tavolo da sei persone.

Il cortile privato comprende anche una zona verde con piante da giardino, perfetta per chi desidera uno spazio esterno riservato da personalizzare secondo le proprie esigenze.

Perché scegliere questa casa?

  • Indipendenza e privacy (libera su tre lati)

  • Superficie generosa e ambienti ben organizzati

  • Box auto di proprietà

  • Portico e cortile privato

  • Posizione comoda e ben collegata

Una soluzione completa, ideale per famiglie o per chi cerca una casa spaziosa in un contesto tranquillo ma vicino ai principali centri.

Contattaci per ricevere maggiori informazioni e prenotare la tua visita.

-----------------------------------------------------------------------------------------------------------------------
Le indicazioni riportate e le immagini devono considerarsi indicative e non hanno alcun vincolo contrattuale. Alcune metrature sono puramente indicative. Alcuni indirizzi di Google Maps potrebbero non corrispondere esattamente all'ubicazione dell'immobile ma indicare la zona, questo al fine di garantire la privacy dei proprietari. L’Agenzia Immobiliare Davi Srl con sede in Valenza Piazza Gramsci 14C, declina ogni responsabilità per eventuali ed involontarie incongruenze tra le effettive caratteristiche dell’immobile e la descrizione informativa.


 

Planimetria


Piano:

Piano terra, primo piano e secondo piano

Arie:

3

Tipo cucina:

Abitabile

N° camere da letto:

2

N° bagni:

3

Tipo serramenti esterni:

Legno e doppio vetro

Zanzariere:

Tipo riscaldamento:

Autonomo a Gas

Giardino:

Giardino privato:

SI

Cortile:

SI

Mansarda:

SI

Cantina:

SI

Ripostiglio:

SI

Box:

Box incluso nel prezzo:

Porta blindata:

Caminetto:

Passo carraio:

Classe energetica:

D

Prestazione fabbricato:

174.2








Richiedi Informazioni


Dichiaro di avere preso attenta visione dell’informativa sulla privacy e presto il consenso al trattamento dei miei dati personali al fine di cercare un immobile, ex. art. 6, par. 1 lett. A) del Regolamento (UE) 2016/679
Accetto
Vi informiamo inoltre che i Vostri dati anagrafici saranno trattati solo ed esclusivamente da Agenzia Immobiliare Davi Srl o da soggetti espressamene incaricati per l’esecuzione di alcuni dei servizi richiesti e non verranno ceduti a terzi senza un Vostro previo consenso in osservanza del Regolamento (UE) 2016/679
Spunta il campo captcha




CHIAMA
0131.955278