Vendita intero stabile Rivarone (AL)

46.000



RIF. annuncio

: 11689

m2

: 123

Locali

: 2 Locali

Indirizzo

: VIA BASSIGNANA 27

Rivarone, casa indipendente da ristrutturare con giardino privato e tetto nuovo

Contattaci per visitare l'immobile.

Rivarone, via Bassignana, casa indipendente da ristrutturare, circa mq 123, libera su tre arie con giardino privato.
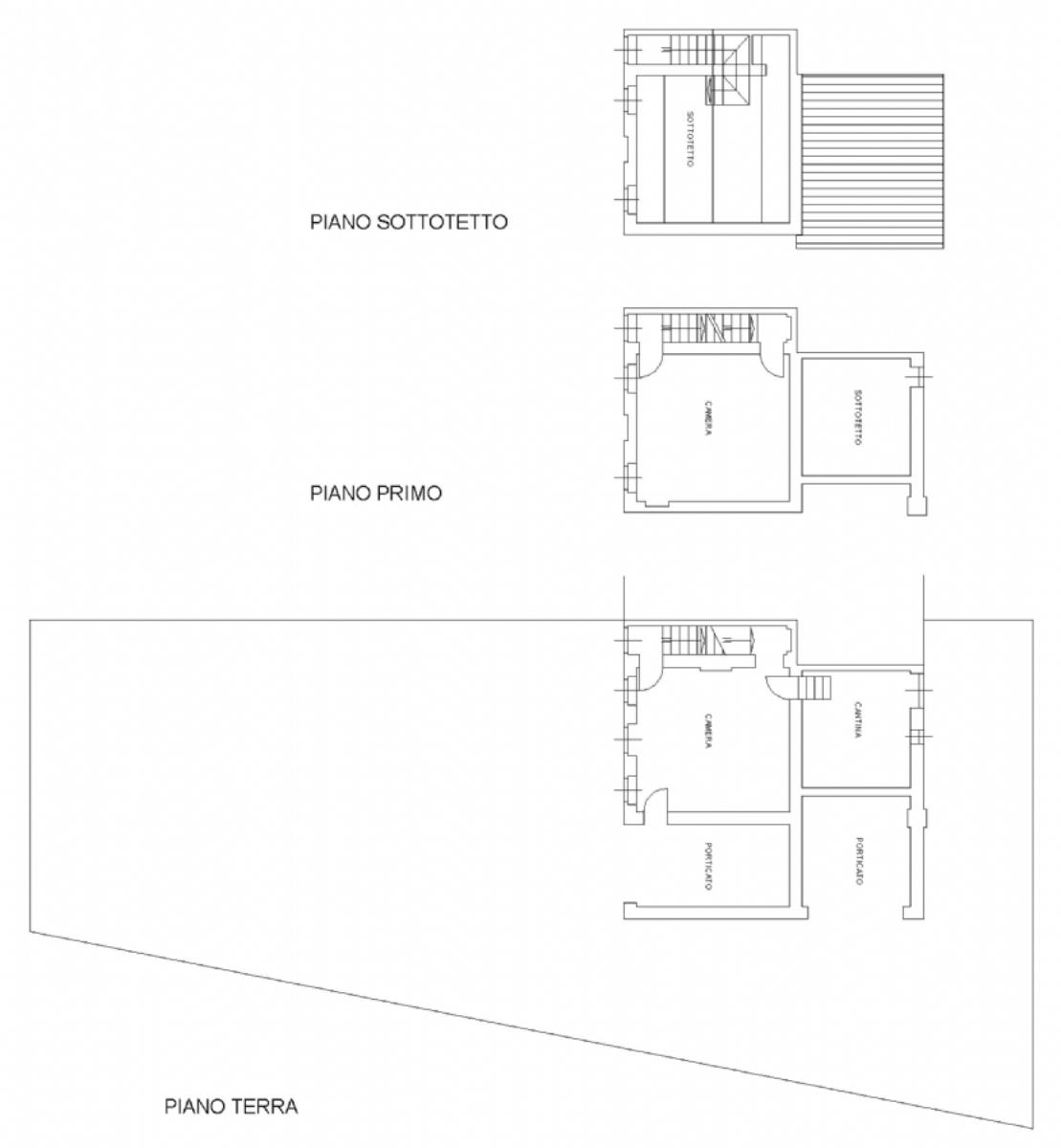
La soluzione è così composta: doppio ingresso al piano terra con stanza con caminetto da cui si può ricavare zona giorno con cucina a vista; al primo piano si trova la zona notte e dal sottotetto al secondo piano è possibile ricavare locali hobby.
Sono compresi un secondo sottotetto, una cantina e due ampi porticati.
Porte d'ingresso blindate nuove e infissi nuovi. Tetto rifatto.

L'immobile dista circa 10 minuti di auto da Valenza.

Contattaci per visitare l'immobile.

-----------------------------------------------------------------------------------------------------------------------
Le indicazioni riportate e le immagini devono considerarsi indicative e non hanno alcun vincolo contrattuale. Alcune metrature sono puramente indicative. Alcuni indirizzi di Google Maps potrebbero non corrispondere esattamente all'ubicazione dell'immobile ma indicare la zona, questo al fine di garantire la privacy dei proprietari. L’Agenzia Immobiliare Davi Srl con sede in Valenza Piazza Gramsci 14C, declina ogni responsabilità per eventuali ed involontarie incongruenze tra le effettive caratteristiche dell’immobile e la descrizione informativa.

 

Planimetria


Piano:

Piano terra, primo piano e secondo piano

Stato manutenzione:

Da ristrutturare

Arie:

3

Tipo cucina:

Abitabile

N° camere da letto:

2

N° bagni:

1

Tipo serramenti esterni:

Legno e doppio vetro

Tipo riscaldamento:

Autonomo

Giardino:

Giardino privato:

SI

Sottotetto:

SI

Cantina:

SI

Ripostiglio:

SI

Locale di sgombero o deposito:

SI

Portico:

SI

Caminetto:

Classe energetica:

G

Prestazione fabbricato:

321,41

Anno costruzione:

1900








Richiedi Informazioni


Dichiaro di avere preso attenta visione dell’informativa sulla privacy e presto il consenso al trattamento dei miei dati personali al fine di cercare un immobile, ex. art. 6, par. 1 lett. A) del Regolamento (UE) 2016/679
Accetto
Vi informiamo inoltre che i Vostri dati anagrafici saranno trattati solo ed esclusivamente da Agenzia Immobiliare Davi Srl o da soggetti espressamene incaricati per l’esecuzione di alcuni dei servizi richiesti e non verranno ceduti a terzi senza un Vostro previo consenso in osservanza del Regolamento (UE) 2016/679
Spunta il campo captcha




CHIAMA
0131.955278