Vendita appartamento Valenza (AL)

163.000

RIF. annuncio

: 12471

m2

: 117

Locali

: 3 Locali

Indirizzo

: STRADA CITERNA 10B

Valenza, appartamento con giardino, cortile e box auto

Contattaci per visitare l'immobile.

Valenza strada Citerna, questo appartamento di 117 mq rappresenta la sintesi perfetta tra modernità e amore per l'aria aperta. Inserita in un curato complesso residenziale edificato nel 2008, la proprietà accoglie i visitatori in un ambiente sereno e protetto, lontano dal traffico cittadino ma a soli cinque minuti dal cuore del centro.

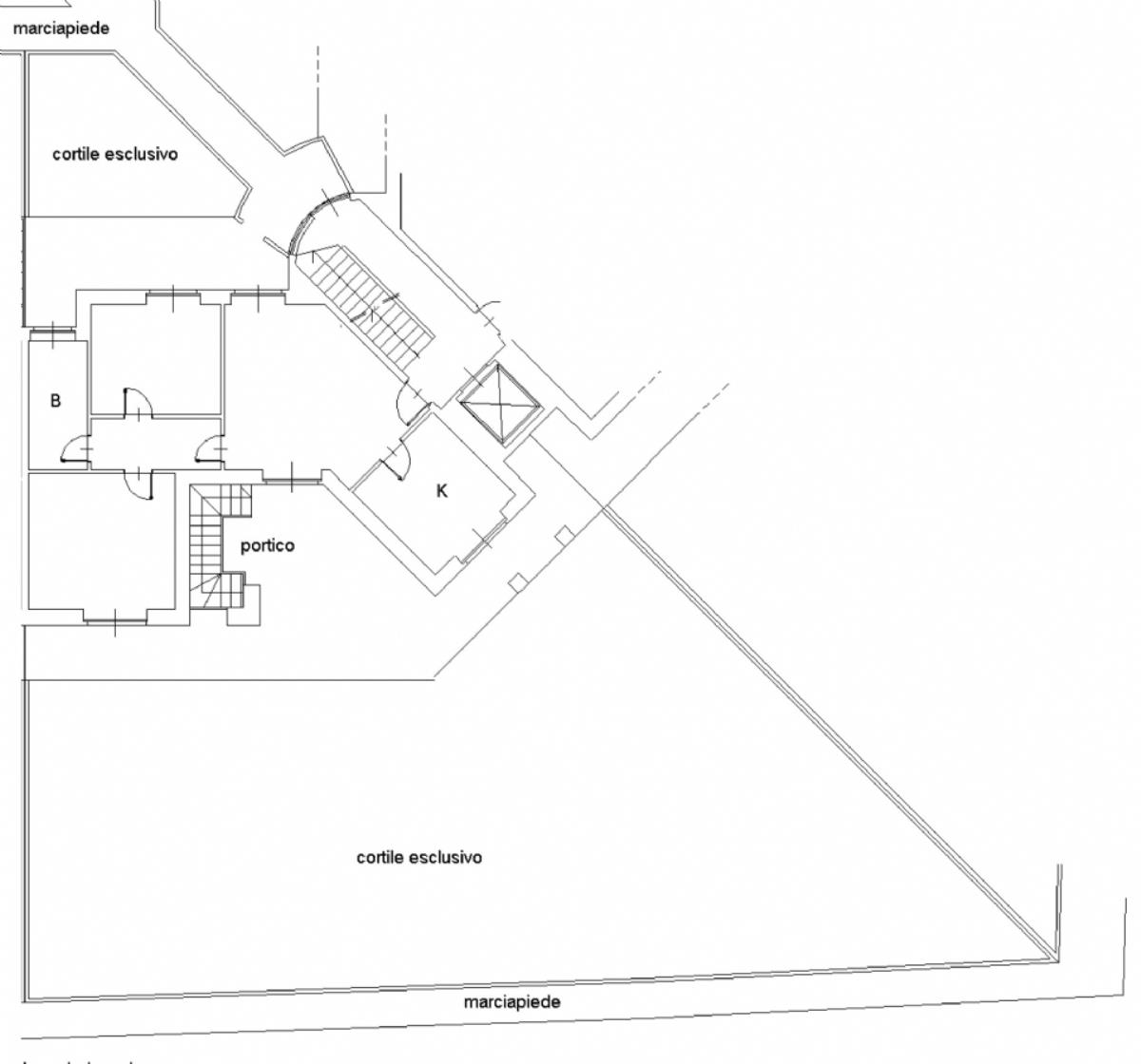
L'ingresso si apre su un soggiorno con accesso diretto al cortile privato, ideale per godersi momenti di relax quotidiano. La cucina semi-abitabile dialoga armoniosamente con l'esterno, così come la camera matrimoniale: entrambe si affacciano infatti sul giardino privato sul retro, arricchito da un comodo porticato coperto che invita a pranzi e cene conviviali durante la bella stagione. La zona notte è completata da una vivace cameretta con affaccio sul cortile e da un bagno finestrato che unisce praticità e benessere, offrendo sia la vasca che la doccia idromassaggio.

Ogni dettaglio tecnico è stato pensato per il massimo comfort abitativo: dagli infissi in legno con vetro camera e zanzariere alla climatizzazione autonoma presente in tutti i locali. La sicurezza e l'efficienza sono garantite dall'impianto di allarme, dal videocitofono e dal pannello solare termico per la produzione di acqua calda, oltre al riscaldamento centralizzato con gestione autonoma tramite contacalorie. Le curate siepi perimetrali assicurano una privacy totale in tutti gli spazi verdi.

La proprietà si estende inoltre al piano seminterrato, collegato direttamente tramite il portico, dove trovano spazio una funzionale taverna, una cantina e un generoso box auto singolo di 22 mq. Per chi necessitasse di ulteriore spazio per le proprie vetture, vi è inoltre la possibilità di acquistare un box auto doppio separatamente. Questa soluzione è l'ideale per chi cerca una dimora pronta da vivere, capace di unire l'efficienza di una costruzione recente con l'esclusività di un giardino privato in un contesto residenziale di pregio.

Contattaci per visitare l'immobile.

-----------------------------------------------------------------------------------------------------------------------
Le indicazioni riportate e le immagini devono considerarsi indicative e non hanno alcun vincolo contrattuale. Alcune metrature sono puramente indicative. Alcuni indirizzi di Google Maps potrebbero non corrispondere esattamente all'ubicazione dell'immobile ma indicare la zona, questo al fine di garantire la privacy dei proprietari. L’Agenzia Immobiliare Davi Srl con sede in Valenza Piazza Gramsci 14C, declina ogni responsabilità per eventuali ed involontarie incongruenze tra le effettive caratteristiche dell’immobile e la descrizione informativa.

 

Planimetria


Piano:

PIANO TERRA

Stato manutenzione:

In ottimo stato

Arie:

2

Tipo cucina:

Semi abitabile

N° camere da letto:

2

N° bagni:

1

Tipo serramenti esterni:

Legno e vetro camera

Zanzariere:

Tipo riscaldamento:

Centralizzato con contacalorie

Gestione e riscaldamento:

€3.389,48

Tipo facciata:

Mattoni a vista

Giardino:

Giardino privato:

SI

Cortile:

SI

Taverna:

SI

Cantina:

SI

Portico:

SI

Box:

m2 Box:

22

Box incluso nel prezzo:

Cancello elettrico:

Solare termico:

Porta blindata:

Passo carraio:

Impianto di allarme:

Classe energetica:

A1

Prestazione fabbricato:

129,05

Anno costruzione:

2008

Ascensore:









Richiedi Informazioni


Dichiaro di avere preso attenta visione dell’informativa sulla privacy e presto il consenso al trattamento dei miei dati personali al fine di cercare un immobile, ex. art. 6, par. 1 lett. A) del Regolamento (UE) 2016/679
Accetto
Vi informiamo inoltre che i Vostri dati anagrafici saranno trattati solo ed esclusivamente da Agenzia Immobiliare Davi Srl o da soggetti espressamene incaricati per l’esecuzione di alcuni dei servizi richiesti e non verranno ceduti a terzi senza un Vostro previo consenso in osservanza del Regolamento (UE) 2016/679
Spunta il campo captcha




CHIAMA
0131.955278