Vendita casa indipendente Valenza (AL)

74.000

RIF. annuncio

: 1644

m2

: 236

Locali

: 3 Locali

Monte Valenza, casa indipendente da ristrutturare, giardino, vista panoramica

Contattaci per visitare l'immobile.

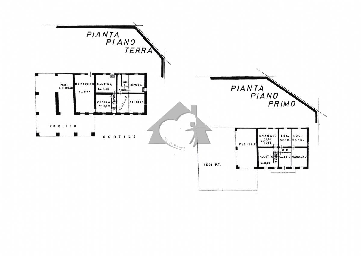
Proponiamo in vendita, a Monte Valenza, una casa indipendente su i quattro lati di Mq 236 con ampio giardino di 2700 mq. L'abitazione è disposta su due livelli: piano terra con salotto, tinello, cucina, ripostiglio, bagno, cantina, magazzino e magazzino per attrezzi. Il primo piano invece è composto da due camere da letto, due locali di sgombero, magazzino, granaio e fienile. Da ristrutturare completamente.

Ideale per vivere in mezzo alla natura a pochi minuti dalla Città.

Contattaci per visitare l'immobile.
------------------------------------------------------------------------------------------------------------------------ Le indicazioni riportate e le immagini devono considerarsi indicative e non hanno alcun vincolo contrattuale. Alcune metrature sono puramente indicative. Alcuni indirizzi di google map potrebbero non corrispondere esattamente all'ubicazione dell'immobile ma indicare la zona, questo al fine di garantire la privacy dei proprietari. L’ Agenzia Immobiliare Davi Srl con sede in Valenza Piazza Gramsci 14C, declina ogni responsabilità per eventuali ed involontarie incongruenze tra le effettive caratteristiche dell’immobile e la descrizione informativa.

 

Planimetria


Piano:

PIANO TERRA E PRIMO PIANO

Stato manutenzione:

In stato originale

Arie:

4

Tipo cucina:

ABITABILE

N° camere da letto:

2

N° bagni:

1

Tipo serramenti esterni:

IN LEGNO CON VETRO SINGOLO

Tipo riscaldamento:

Autonomo

N° balconi:

1

Giardino:

Terreno:

SI

Cantina:

SI

Ripostiglio:

SI

Locale di sgombero o deposito:

SI

Caminetto:

Classe energetica:

G

Prestazione fabbricato:

510,85

Anno costruzione:

1900






Richiedi Informazioni


Dichiaro di avere preso attenta visione dell’informativa sulla privacy e presto il consenso al trattamento dei miei dati personali al fine di cercare un immobile, ex. art. 6, par. 1 lett. A) del Regolamento (UE) 2016/679
Accetto
Vi informiamo inoltre che i Vostri dati anagrafici saranno trattati solo ed esclusivamente da Agenzia Immobiliare Davi Srl o da soggetti espressamene incaricati per l’esecuzione di alcuni dei servizi richiesti e non verranno ceduti a terzi senza un Vostro previo consenso in osservanza del Regolamento (UE) 2016/679
Spunta il campo captcha




CHIAMA
0131.955278