Vendita intero stabile San Salvatore Monf. (AL)

295.000



RIF. annuncio

: 9781

m2

: 285

Indirizzo

: via CAVALLI, 43, 15046

San Salvatore, villa singola con ampio terreno e appartamento indipendente al piano terra 

Contattaci per visitare l'immobile.

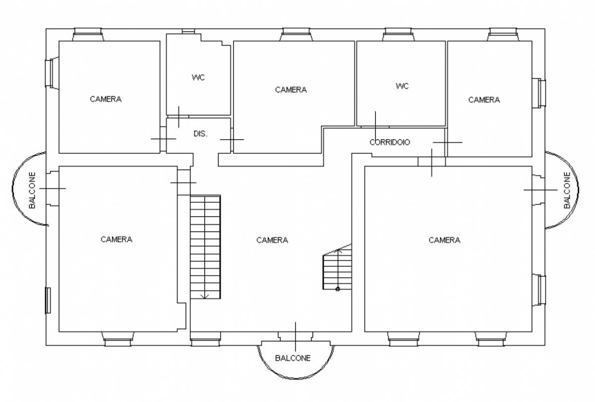
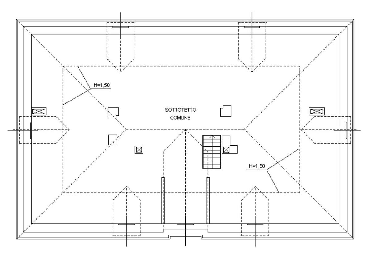
San Salvatore, la storica Villa Laura, una villa singola di inizio Novecento di circa 285 mq è distribuita su due livelli ed è così strutturata: al piano terra ingresso su salone, stanza/sala da pranzo con soffitto affrescato e cucina abitabile; salendo le scale si accede al primo piano dove si trovano un atrio con balcone, cinque camere da letto di cui due con balcone e due bagni finestrati. Nell'atrio è presente la scala di accesso al sottotetto.

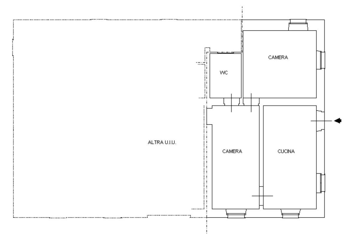
Al piano terra si trova anche un appartamento bilocale con ingresso indipendente costituito da cucina abitabile, due camere da letto e un bagno.

Nel 2023 sono stati svolti interventi di ristrutturazione, tra cui:
- consolidamento e rinforzo della struttura portante del tetto, sostituzione della piccola orditura e del manto di copertura;
- intervento per l’eliminazione della umidità di risalita consistente nella realizzazione di barriera chimica al piano terra e realizzazione di vespaio aerato;
- installazione di impianto ibrido per riscaldamento e acqua calda sanitaria, con rifacimento della tubazione di distribuzione al piano terra;
- installazione di impianto fotovoltaico 6 kW + accumulo 15 kW + colonnina di ricarica;

Tutti gli infissi sono completamente nuovi, in PVC Finstral con vetro camera, così come i pavimenti del piano terra, sia della villa che dell'alloggio.

Lo spazio esterno comprende circa 2100 mq di terreno/giardino.

Possibilità di acquistare, prezzo a parte, anche un rustico su due piani attualmente usato come locale di sgombero/magazzino.

E’ altresì necessario, per rendere abitabile l’immobile, rifare l’impianto elettrico (eccetto le parti relative al termico e al fotovoltaico), gli impianti idrosanitari e le finiture interne ad eccezione della pavimentazione al piano terra, di nuova realizzazione.

Contattaci per visitare l'immobile.

-----------------------------------------------------------------------------------------------------------------------
Le indicazioni riportate e le immagini devono considerarsi indicative e non hanno alcun vincolo contrattuale. Alcune metrature sono puramente indicative. Alcuni indirizzi di Google Maps potrebbero non corrispondere esattamente all'ubicazione dell'immobile ma indicare la zona, questo al fine di garantire la privacy dei proprietari. L’Agenzia Immobiliare Davi Srl con sede in Valenza Piazza Gramsci 14C, declina ogni responsabilità per eventuali ed involontarie incongruenze tra le effettive caratteristiche dell’immobile e la descrizione informativa.


 

Planimetria


Piano:

PIANO TERRA - PRIMO PIANO

Stato manutenzione:

Mediocre

Arie:

QUATTRO

Tipo cucina:

ABITABILE

N° camere da letto:

10

N° bagni:

3

Tipo serramenti esterni:

PVC CON VETRO CAMERA

Tipo riscaldamento:

Autonomo a Gas

N° balconi:

3

Giardino:

Giardino privato:

SI

Terreno:

2100

Solaio:

SI

Locale di sgombero o deposito:

SI

Classe energetica:

A1

Prestazione fabbricato:

79.38

Anno costruzione:

1900








Richiedi Informazioni


Dichiaro di avere preso attenta visione dell’informativa sulla privacy e presto il consenso al trattamento dei miei dati personali al fine di cercare un immobile, ex. art. 6, par. 1 lett. A) del Regolamento (UE) 2016/679
Accetto
Vi informiamo inoltre che i Vostri dati anagrafici saranno trattati solo ed esclusivamente da Agenzia Immobiliare Davi Srl o da soggetti espressamene incaricati per l’esecuzione di alcuni dei servizi richiesti e non verranno ceduti a terzi senza un Vostro previo consenso in osservanza del Regolamento (UE) 2016/679
Spunta il campo captcha




CHIAMA
0131.955278