Vendita casa indipendente Pomaro Monferrato (AL)

78.000

RIF. annuncio

: 3466

m2

: 112

Locali

: 3 Locali

Indirizzo

: VICOLO SAN BERNARDO

Pomaro Monferrato, casetta indipendente con cortiletto e box auto

Contattaci per visitare l'immobile.

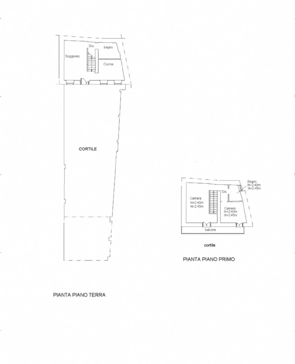
Pomaro Monferrato, casetta indipendente di mq 112 su due piani. Questa residenza rappresenta una rara opportunità per chi desidera l'indipendenza, senza spese condominiali e con spazio privato esterno. Che si tratti di una prima casa per una coppia o di un rifugio per i weekend tra le colline del Monferrato, questa proposta è pronta per essere abitata da subito, offrendo un perfetto equilibrio tra lo stile rustico del borgo e le comodità della vita contemporanea.

La proprietà accoglie i visitatori attraverso un cortile privato recentemente ristrutturato, uno spazio pavimentato dove un rigoglioso ulivo centrale crea un'atmosfera di pace e riservatezza. L'accesso è reso comodo da un cancello elettrico, dal box auto di 28 mq a una pratica zona porticata, garantendo una gestione degli spazi esterni funzionale.

Al piano terra, la zona giorno si apre con un salotto accogliente che dialoga con la cucina semiabitabile; un primo bagno con doccia completa il livello.
Al primo piano la zona notte ospita due stanze, di cui una camera da letto matrimoniale e una camera singola ideale come studio o zona hobby, entrambe con affaccio diretto sulla lunga balconata loggiata che regala una vista aperta sui tetti del borgo e sul paesaggio circostante. Un piccolo bagno finestrato completa il piano.

Gli infissi sono in legno con doppio vetro, zanzariere, persiane in legno e inferriate; presente la caldaia a condensazione. 

Contattaci per visitare l'immobile.

-----------------------------------------------------------------------------------------------------------------------
Le indicazioni riportate e le immagini devono considerarsi indicative e non hanno alcun vincolo contrattuale. Alcune metrature sono puramente indicative. Alcuni indirizzi di Google Maps potrebbero non corrispondere esattamente all'ubicazione dell'immobile ma indicare la zona, questo al fine di garantire la privacy dei proprietari. L’Agenzia Immobiliare Davi Srl con sede in Valenza Piazza Gramsci 14C, declina ogni responsabilità per eventuali ed involontarie incongruenze tra le effettive caratteristiche dell’immobile e la descrizione informativa.

 

Planimetria


Piano:

PIANO TERRA - PRIMO PIANO

Stato manutenzione:

In buono stato

Arie:

1

Tipo cucina:

Semi abitabile

N° camere da letto:

2

N° bagni:

2

Tipo serramenti esterni:

Legno e doppio vetro

Zanzariere:

Tipo riscaldamento:

Autonomo a Gas

N° balconi:

1

Cortile:

SI

Ripostiglio:

SI

Box:

m2 Box:

28

Box incluso nel prezzo:

Cancello elettrico:

Porta blindata:

Classe energetica:

F

Prestazione fabbricato:

192.43

Anno costruzione:

1940








Richiedi Informazioni


Dichiaro di avere preso attenta visione dell’informativa sulla privacy e presto il consenso al trattamento dei miei dati personali al fine di cercare un immobile, ex. art. 6, par. 1 lett. A) del Regolamento (UE) 2016/679
Accetto
Vi informiamo inoltre che i Vostri dati anagrafici saranno trattati solo ed esclusivamente da Agenzia Immobiliare Davi Srl o da soggetti espressamene incaricati per l’esecuzione di alcuni dei servizi richiesti e non verranno ceduti a terzi senza un Vostro previo consenso in osservanza del Regolamento (UE) 2016/679
Spunta il campo captcha




CHIAMA
0131.955278