Vendita appartamento Valenza (AL)

129.000

RIF. annuncio

: 11865

m2

: 104

Locali

: 3 Locali

Indirizzo

: VIA NOCE 35, 15048

Valenza, appartamento completamente ristrutturato al quarto piano con 2 posti auto

Contattaci per visitare l'immobile.

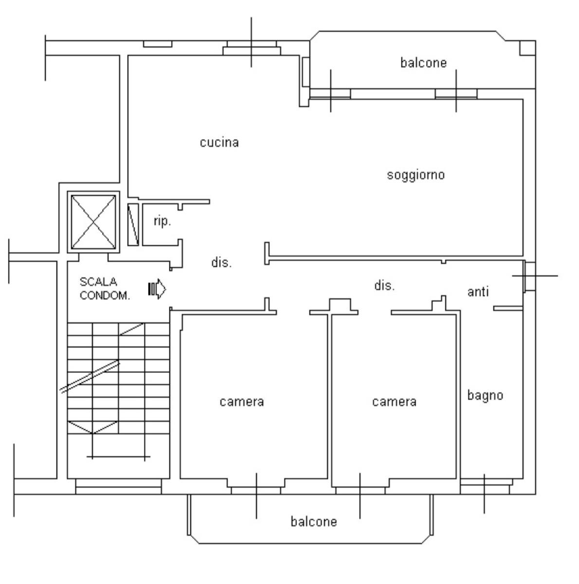
Valenza, via Noce, appartamento di circa 104 mq completamente ristrutturato sito al quarto piano con ascensore.
La soluzione è così composta: ingresso con porta blindata su comodo disimpegno con ripostiglio, ampio soggiorno con cucina a vista e balcone, due camere da letto di cui una matrimoniale, entrambe con balcone, bagno finestrato con doccia e antibagno.

Infissi di ultima generazione con in PVC con vetro camera; pavimento in ceramica tinta legno in tutti i locali; riscaldamento centralizzato con valvole.
Doppio posto auto in autorimessa condominiale coperta.

Posizione comoda ai servizi e al parcheggio, a pochi minuti dal Centro.

Contattaci per visitare l'immobile.

-----------------------------------------------------------------------------------------------------------------------
Le indicazioni riportate e le immagini devono considerarsi indicative e non hanno alcun vincolo contrattuale. Alcune metrature sono puramente indicative. Alcuni indirizzi di Google Maps potrebbero non corrispondere esattamente all'ubicazione dell'immobile ma indicare la zona, questo al fine di garantire la privacy dei proprietari. L’Agenzia Immobiliare Davi Srl con sede in Valenza Piazza Gramsci 14C, declina ogni responsabilità per eventuali ed involontarie incongruenze tra le effettive caratteristiche dell’immobile e la descrizione informativa.


 

Planimetria


Piano:

Quarto piano

Stato manutenzione:

Ristrutturato

Arie:

3

Tipo cucina:

ABITABILE

N° camere da letto:

2

N° bagni:

1

Tipo serramenti esterni:

PVC e vetro camera

Tipo riscaldamento:

Centralizzato

N° balconi:

2

Cantina:

SI

Ripostiglio:

SI

Box incluso nel prezzo:

N° posto auto:

2

Porta blindata:

Classe energetica:

F

Prestazione fabbricato:

186.11

Anno costruzione:

1965

Ascensore:

N° ascensori:

1








Richiedi Informazioni


Dichiaro di avere preso attenta visione dell’informativa sulla privacy e presto il consenso al trattamento dei miei dati personali al fine di cercare un immobile, ex. art. 6, par. 1 lett. A) del Regolamento (UE) 2016/679
Accetto
Vi informiamo inoltre che i Vostri dati anagrafici saranno trattati solo ed esclusivamente da Agenzia Immobiliare Davi Srl o da soggetti espressamene incaricati per l’esecuzione di alcuni dei servizi richiesti e non verranno ceduti a terzi senza un Vostro previo consenso in osservanza del Regolamento (UE) 2016/679
Spunta il campo captcha




CHIAMA
0131.955278